Eladó Lakás (panel) Budapest IV. kerület - Árpád út

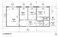
59 m2Alapterület 1 + 2 Szoba
73 000 000 Ft Ár
394428Azonosító
További adatok

Udvari Kilátás

Jó állapotú Állapot

Panel Szerkezet

Távfűtés Fűtés

Összkomfort Komfort

Utcán, közterületen Parkolás

Emelet 4

Van Lift

Kiváló Tömegközlekedés

Nem Amerikai konyhás

Nincs Kertkapcsolat

1990 Építés éve

Közös költség 20 000 Ft

Déli Tájolás

Hitelkalkuláció – a részletekért kattintson valamelyik bank logójára!

Világos, csendes, azonnal költözhető lakás Újpest szívében – parkra néző, kiváló elhelyezkedéssel!

IV. kerület közkedvelt részén, az Árpád úton, az Árpád üzletház közvetlen közelében eladó egy 59 m²-es, 1+2 félszobás, kiváló állapotú panel lakás egy rendezett, szigetelt társasház 4. emeletén.

A lakás egyik legnagyobb előnye a teljes déli tájolás, melynek köszönhetően egész nap világos, napfényes. Az ablakok egy csendes, zöld parkra néznek, így a nyugalom garantált – miközben minden fontos szolgáltatás pár perc sétával elérhető.

Miért fogod szeretni?

Felújított, megkímélt állapot
Műanyag nyílászárók redőnnyel, szúnyoghálóval
Biztonsági bejárati ajtó
Inverteres klíma a komfortért
Külön nyíló szobák – ideális családnak vagy kiadásra
Praktikus, nagy beépített szekrény az előtérben
Kádas fürdő, külön WC

A lakás távfűtéses, egyedi mérőkkel, így a rezsi jól tervezhető és kedvező.

Rezsi (irányadó):

Közös költség: 20.000 Ft
Fűtés + melegvíz: ~8.300 Ft
Víz, villany: fogyasztás szerint

Extra: jelenleg egy 10 m²-es pince bérlete is tartozik hozzá.

Lokáció – minden karnyújtásnyira:
Újpest-Központ közelsége miatt kiváló közlekedés és infrastruktúra:
bevásárlási lehetőségek (Stop Shop, Penny, stb.), óvodák, iskolák, rendelők – mind pár perc sétára.
A metró gyorsan elérhető, a buszok szinte folyamatosan közlekednek.

Jogilag rendezett:

1/1 tulajdon
Per-, teher- és igénymentes

Ideális választás saját otthonnak vagy befektetésnek is!
Hallai Mónika

Hallai Mónika

Hívjon bizalommal

+36-30-649-Mutasd!

További hirdetéseim

Ingatlaniroda
GDN Ingatlanhálózat - Best Sellers

Küldjön üzenetet

Visszahívást kérek

Hasonló ingatlanok