Eladó Ikerház Budapest XXII. kerület - Budatétény modern ikerház

140 m2Alapterület 5 Szoba
175 000 000 Ft Ár
384277Azonosító
További adatok

500 m2 Telek

Kertre néző Kilátás

Új Állapot

Tégla Szerkezet

37 m2 Erkély/terasz

Hőszivattyú Fűtés

Dupla komfort Komfort

Saját beálló Parkolás

Tömegközlekedés

Amerikai konyhás

Van Kertkapcsolat

2025 Építés éve

Hitelkalkuláció – a részletekért kattintson valamelyik bank logójára!

A HÁTSÓ LAKÁS MÁR ELKELT!

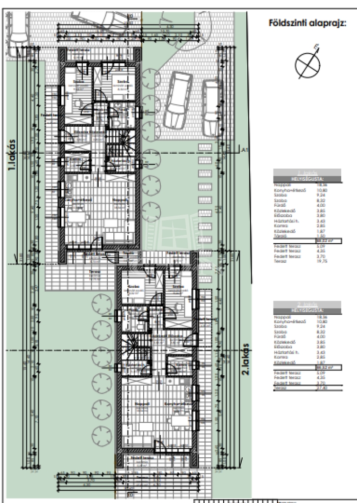
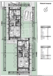
Budapest XXII. kerület kedvelt kertvárosi részén, Budatéténynél eladó egy most indult ikerházas építkezés első és hátsó lakása.

A lakásokhoz gépkocsi beálló és 500 m2-es kertrész tartozik.
Várható befejezés: 2026. január hó

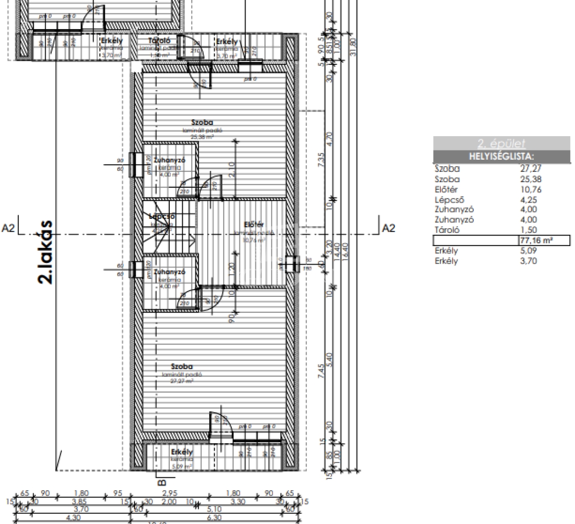
Az első lakás ára 175 millió forint, lakótér alapterülete ~140 m2, terasz 28 m2, erkély 9 m2.
Második lakás ára 175 millió forint, lakótér alapterülete ~ 144 m2, terasz 20 m2, erkély 9 m2.

Fontos tudni, hogy az összeépítésnél a 2 lakás fala csak tárolón keresztül érintkezik!

Fűtés hőszivattyúval, padlófűtéssel történik.

Amennyiben bővebb információt szeretne a lakások műszaki paramétereiről, kérem keressen a megadott számon, akár hétvégén is!

INGYENES hitel tanácsadás, CSOK Plusz ügyintézés!
BANKFÜGGETLEN hitelcentrumunk az összes elérhető bank és hitelintézet ajánlatát versenyezteti az Ön kedvéért, ráadásul DÍJMENTESEN.

- Egyedi, bankfiókban nem elérhető kamat- és díjkedvezmények
- Hitelképesség vizsgálat
- Idő, energia és pénz megtakarítás
- Teljes hivatali ügyintézés

Amennyiben hirdetésem felkeltette az érdeklődését vagy egyéb információra van szüksége hívjon bizalommal!
Hallai Mónika

Hallai Mónika

Hívjon bizalommal

+36-30-649-Mutasd!

További hirdetéseim

Ingatlaniroda
GDN Ingatlanhálózat - Best Sellers

Küldjön üzenetet

Visszahívást kérek

Hasonló ingatlanok