Eladó Családi ház Kecskemét - Petőfiváros

280 m2Alapterület 6 Szoba
238 000 000 Ft Ár
394893Azonosító
További adatok

989 m2 Telek

Udvari Kilátás

Felújított Állapot

Tégla Szerkezet

42 m2 Erkély/terasz

Gáz (cirkó) Fűtés

Dupla komfort Komfort

Saját garázs Parkolás

Háziállat Nem

Kiváló Tömegközlekedés

Amerikai konyhás

Van Kertkapcsolat

2004 Építés éve

Hitelkalkuláció – a részletekért kattintson valamelyik bank logójára!

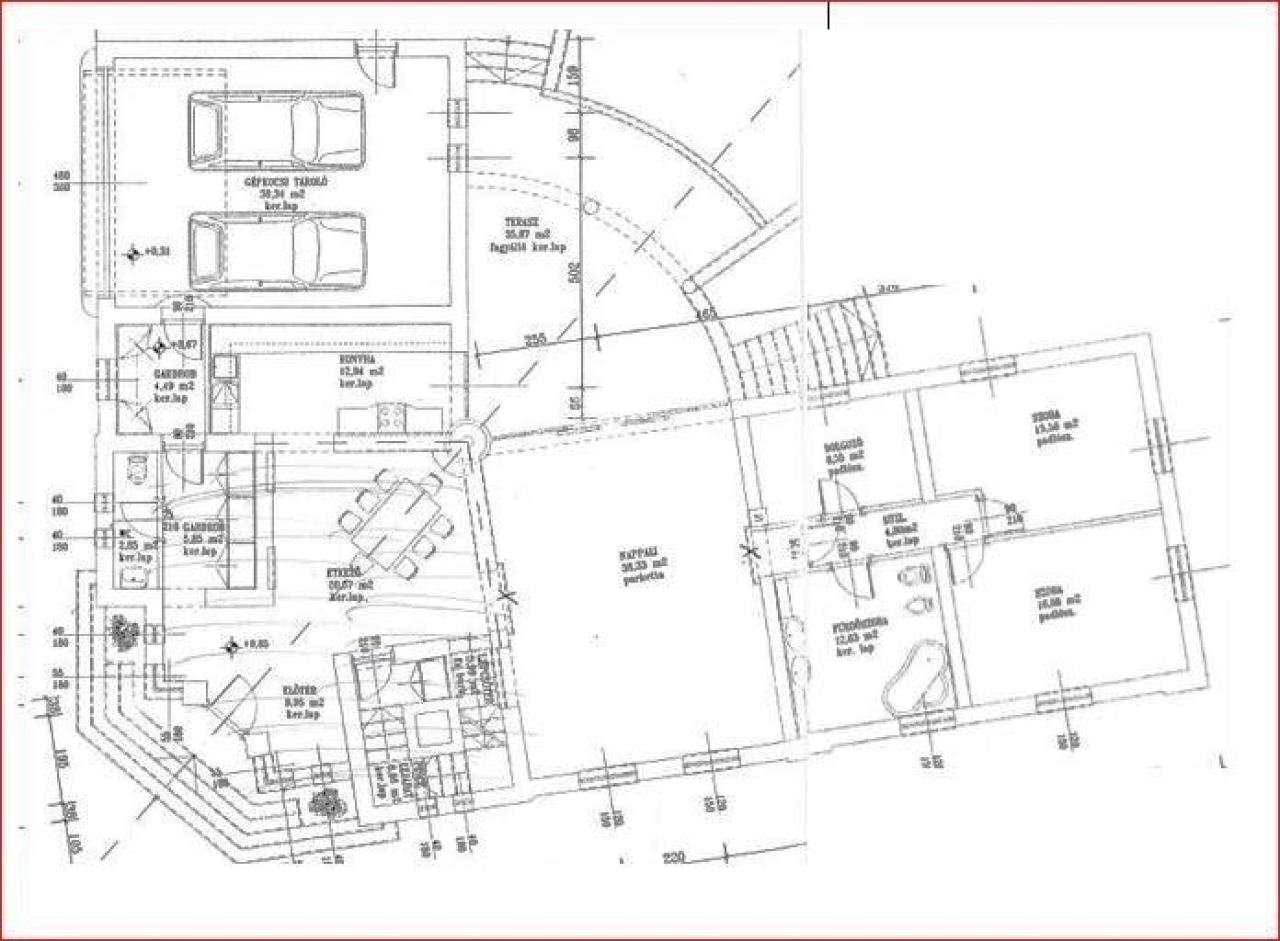
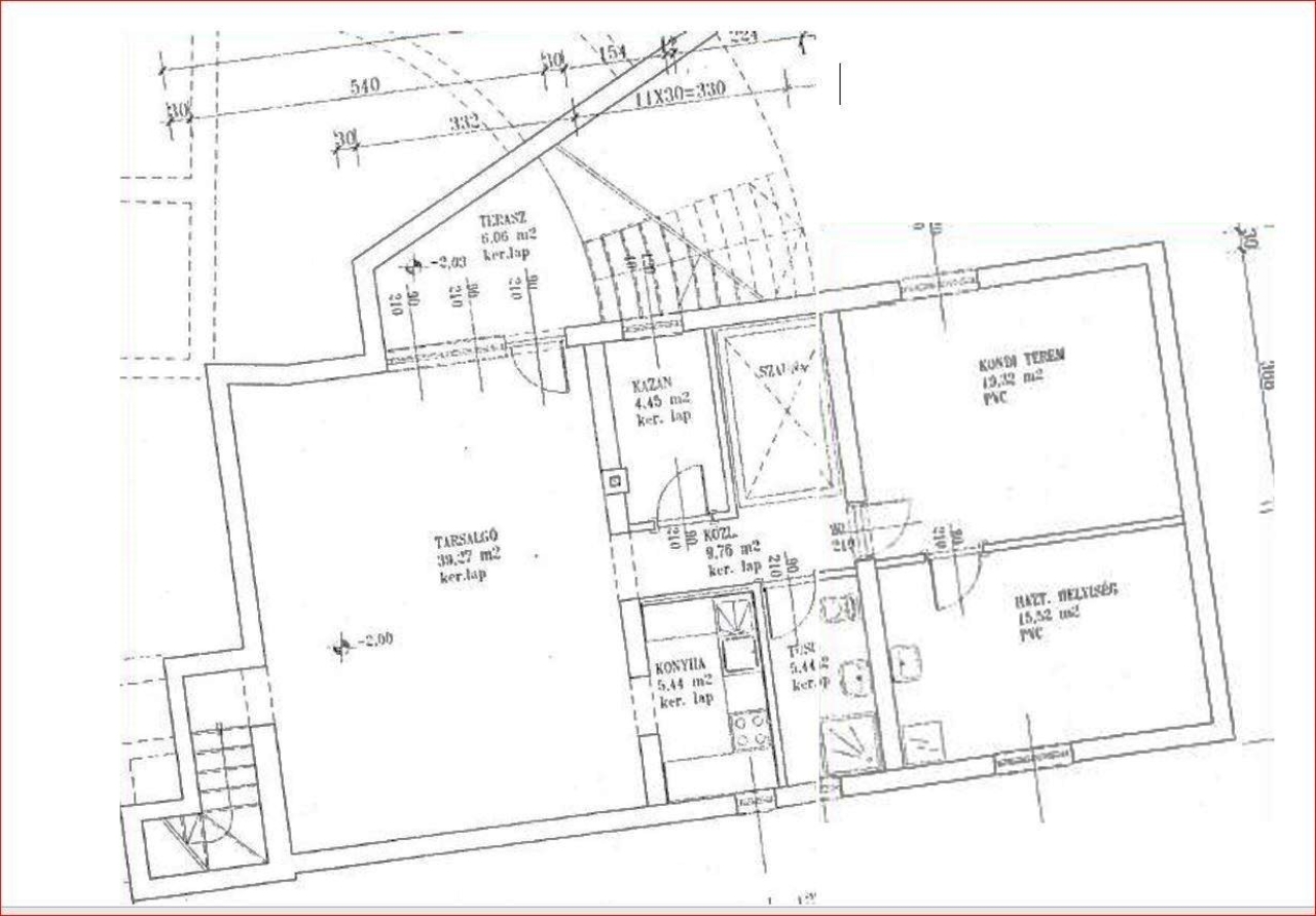
Kecskemét, Petőfiváros kedvelt, exkluzív részén 989 nm telken, 280 nm lakóterű, 3 szintes, nappali+6 szobás családi ház eladó.
Teljesség igénye nélkül néhány érdeklődést felkeltő paraméter:
- 2004-ben épült téglafalazat, fa ablakok, 2 rétegű üvegezéssel
- Szuterén rész 85 nm, 2 nagy helyiség, kazánház, mosókonyha, wc,
- Földszint 170 nm, étkező, konyha, fürdő, WC padlófűtésű, szobák
radiátor hőleadókkal, 2 db légkondicionáló, nappaliban üvegfalú kandalló
- Tetőtérben szobák és pingpong terem, erkély
- Fedett 40 terasz, 38 nm garázs
- Konyha gépesített
- Fúrott kút, automata öntözőberendezés
- Új kondenzációs kazán
- Riasztóberendezés
- Parkosított, füvesített, több éves, beállt kert
- Kültéri medence
Csendes, kertvárosi, biztonságos környék, jó közlekedés, kiváló elhelyezkedésű és elrendezésű, tágas, világos életterek, kiválóan alkalmas több gyermekes család részére, de a külön bejáratú szuterén részben bármilyen jellegű szolgáltatás, vállalkozás, iroda működtethető.
Hallai Mónika

Hallai Mónika

Hívjon bizalommal

+36-30-649-Mutasd!

További hirdetéseim

Ingatlaniroda
GDN Ingatlanhálózat - Best Sellers

Küldjön üzenetet

Visszahívást kérek

Hasonló ingatlanok