Kiadó Családi ház Kecskemét - Petőfiváros

280 m2Alapterület 6 Szoba
650 000 Ft /Hó Ár
394574Azonosító
További adatok

989 m2 Telek

Udvari Kilátás

Felújított Állapot

Tégla Szerkezet

42 m2 Erkély/terasz

Gáz (cirkó) Fűtés

Dupla komfort Komfort

Saját garázs Parkolás

Háziállat Nem

Kiváló Tömegközlekedés

Amerikai konyhás

Van Kertkapcsolat

2004 Építés éve

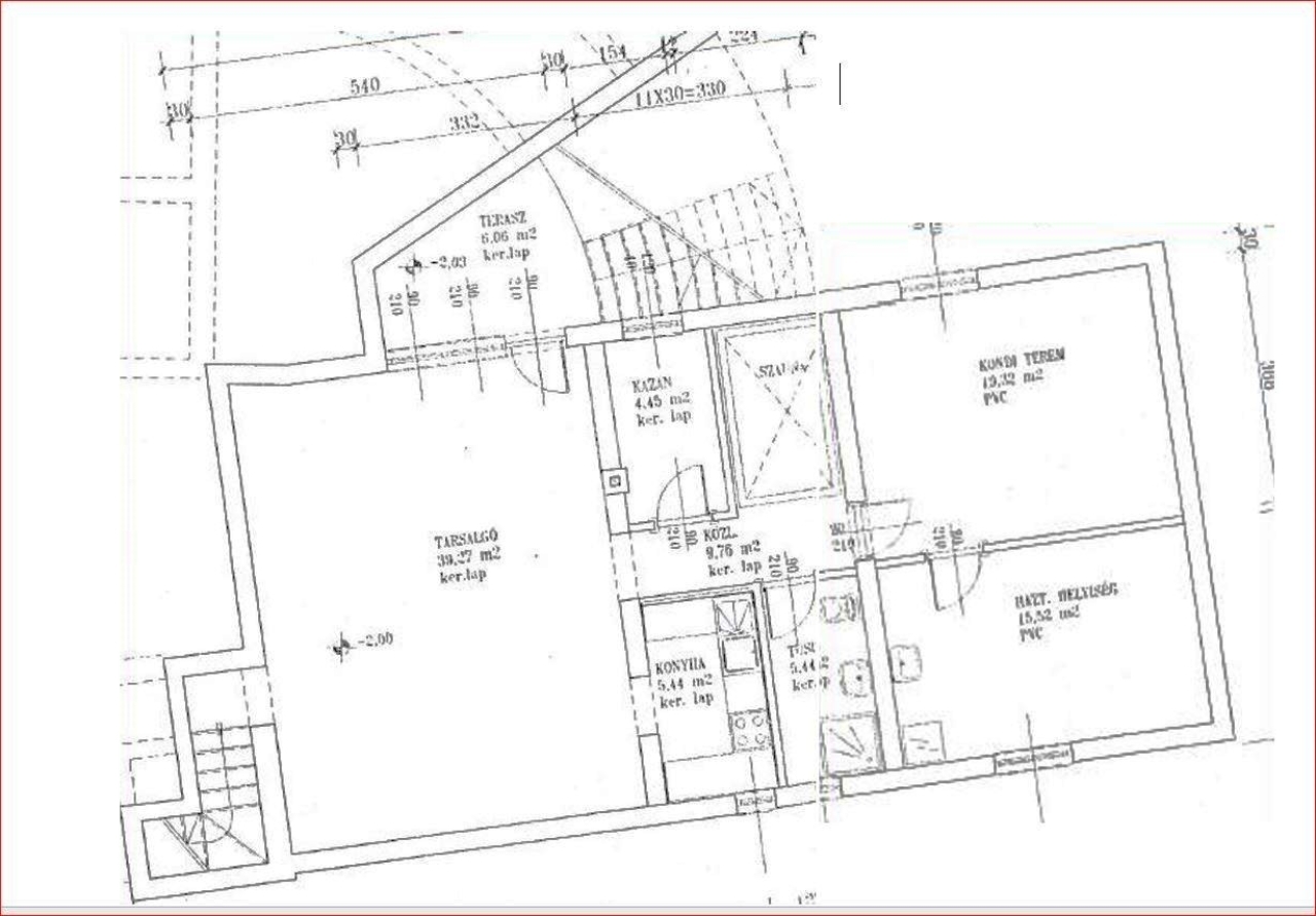
Kecskemét, Petőfiváros kedvelt, exkluzív részén, 989 nm telken, 280 nm lakóterű, 3 szintes, nappali+6 szobás családi ház hosszú távra kiadó.
Teljesség igénye nélkül néhány érdeklődést felkeltő paraméter:
- 2004-ben épült téglafalazat, fa ablakok, 2 rétegű üvegezéssel
- Szuterén rész 85 nm, 2 nagy helyiség, kazánház, mosókonyha, wc,
- Földszint 170 nm, étkező, konyha, fürdő, WC padlófűtésű, szobák
radiátor hőleadókkal, 2 db légkondicionáló, nappaliban üvegfalú kandalló
- Tetőtérben szobák és pingpong terem
- Fedett 40 terasz, 38 nm garázs
- Konyha gépesített
- Fúrott kút, automata öntözőberendezés
- Új kondenzációs kazán
- Riasztóberendezés
- Parkosított, füvesített udvar, automata öntözőberendezéssel
- Kültéri medence
Csendes, kertvárosi, biztonságos környék, jó közlekedés, kiváló elhelyezkedésű és elrendezésű, tágas, világos életterek, kiválóan alkalmas több gyermekes család részére, de a külön bejáratú szuterén részben bármilyen jellegű szolgáltatás, vállalkozás, iroda működtethető.
Hallai Mónika

Hallai Mónika

Hívjon bizalommal

+36-30-649-Mutasd!

További hirdetéseim

Ingatlaniroda
GDN Ingatlanhálózat - Best Sellers

Küldjön üzenetet

Visszahívást kérek

Hasonló ingatlanok